13 Skerman Lane, Booroobin, QLD 4552

Booroobin

Sold

PREPARE TO BE IMPRESSED!

At the end of an unassuming driveway a sense of peace and privacy await as you approach this delightful single level, brick family home. Perched high on the hill (551m elevation to be precise), you will be mesmerised by the majestic views of the Mary Valley and distant ranges.
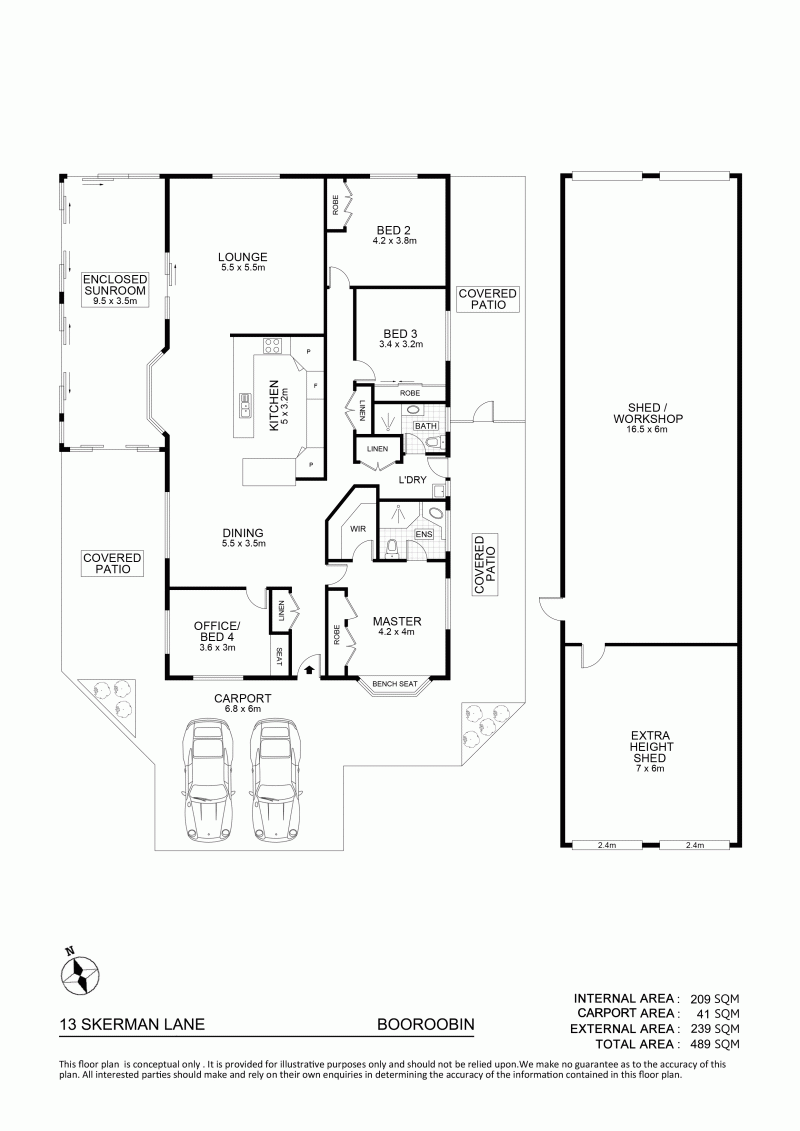
The bright and welcoming layout offers four great sized bedrooms, all with built-in robes and two bathrooms. The hub of the home is the high ceilinged, open-plan and light-filled kitchen, dining and lounge area, all with glorious valley views. From here there is a seamless flow to the undercover patio and enclosed sunroom where those views just keep getting better and provide a picture perfect backdrop. Enjoy the outdoors with the stunning inground horizon pool where you will feel as though you are floating in the view!
For those who like to tinker, there is a large 16.5m x 6m workshop and attached is an extra high 7m x 6m shed for the caravan or boat and an abundance of storage. There is also a double carport to the home with undercover access.
The home is looked after by a 2 x 8000 gallon rainwater tanks and 1 x 5000 gallon with the added service of a 2.1kw solar back to grid electricity system.

Features include:
• Four great sized bedrooms all with built in robes and ensuite to main bedroom
• Open plan living area, large kitchen with granite benchtops and 900mm cooktop/ oven
• Enclosed and covered outdoor entertaining areas and sunroom
• 16.5m x 6m workshop/shed with dual entry - Side access to property plus access to both ends of shed, additional extra high 7m x 6m shed attached
• Over 20,000 gallons of water storage plus a 2.1kw solar electricity system
• 4019m2(1 acre) of land, established fruit trees, veggie beds and attractive gardens throughout.

Just a 13 minute drive to Maleny, you need to inspect this property quickly! With the views on offer, the level, usable land and versatility in the home plus the huge shed / workshop it's hard to imagine this will last in the current market! Contact Jess to organise your inspection NOW on 0438 616 064.

All information contained herein is gathered from sources we believe to be reliable. However, we cannot guarantee its accuracy and interested persons should rely on their own enquiries.

This property is being marketed without a price and therefore a price guide cannot be provided. The website may have filtered the property into a price bracket for website functionality purposes. Please contact Agent for further guidance on price.

Property Links

Location

Property Snapshot

Property Features

Property ID 20825086

Bedrooms 4

Bathrooms 2

Garage 10

Carports 2

Land Size 4019.00000000 Square Mtr approx.

Air Conditioning Yes

Built In Robes Yes

Dishwasher Yes

Outdoor Ent Yes

Pool Yes

In Ground Pool Yes

Property Contact

Your Details
Your Enquiry
  1. Please describe how we can be of assistance to you.

  2.  

    Would you like to join our mail list?

Submit